Studentläge
Inflytt våren 2026
Uthyrning pågår
Antal våningar:
1
Antal lägenheter:
18
Antal treor:
18

Byggs nu – Tallyckan i Stöpen

Lägenheterna på Tallyckan

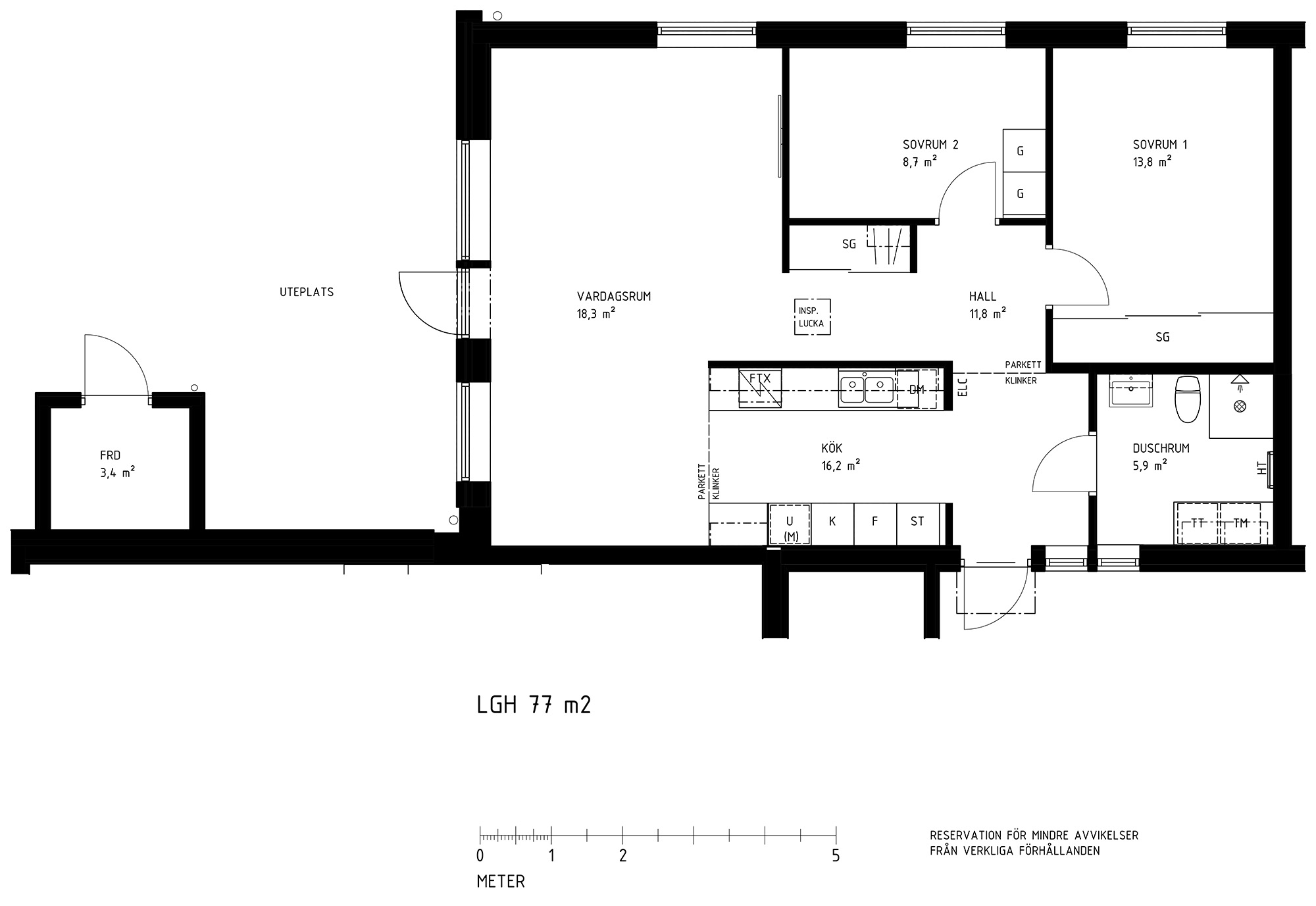
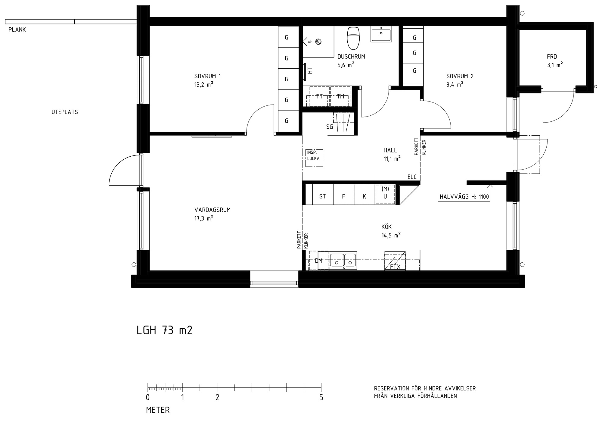
På Tallyckan bygger vi totalt 18 lägenheter i radhus. Bostäderna är välplanerade treor på cirka 73-77 kvadratmeter.

Alla lägenheterna ligger i markplan, vilket innebär god tillgänglighet. Bostaden är noggrant utformad för att du som hyresgäst ska ha ett trivsamt och praktiskt hem. Köket är rymligt – och den öppna planlösningen ger goda möjligheter till social samvaro. Husen har en imponerande takhöjd på upp till tre meter. Utöver garderoberna i lägenheten får du också ett tillhörande förråd.

Ritningar och planlösningar

Här presenterar vi våra två lägenhetstyper – en som är cirka 73 kvadratmeter och en som är cirka 77 kvadratmeter.  

Hyror

Månadshyran på Tallyckan blir:

Trea på 73 kvadratmeter (12 stycken): 13 500 kr
Trea på 77 kvadratmeter (6 stycken): 13 900 kr
Parkeringsplats (15 stycken): 190 kr
Carport (3 stycken): 600 kr

Kostnaden för bostadens förbrukning av varmvatten, kallvatten och hushållsel tillkommer.

Hyresnivåerna är förhandlade med hyresgästföreningen och gäller vid inflyttningen. Hyrorna brukar sedan förändras en gång per år – även det efter förhandling med hyresgästföreningen. 

Hyresrätt ger frihet

Att bo i hyresrätt ger dig tid över för roligare saker i livet. Här slipper du oroa dig över flagnande fönster eller läckande tak. Du är också fri från extrautgifter om kylskåpet går sönder eller om en fastighetstekniker behöver rycka in. Skövdebostäder erbjuder service i toppklass och du lägger enkelt in en felanmälan via Mina sidor eller genom att ringa kundcenter.

Att vara hyresgäst kräver förstås också lite arbete. Du ansvarar själv för bland annat gräsklippning, viss snöskottning och för att vårda lägenheten. Det handlar dock om betydligt mindre jobb än att till exempel äga en äldre villa med stor trädgård – så att hyresrätt är en boendeform som frigör både tid och pengar råder det inga tvivel om.

Standard på Tallyckan

  • Köket kommer från Vedum
  • Vitvaror från Elvita: Kyl, frys, diskmaskin, varmluftsugn, induktionshäll, tvättmaskin och värmepumpstumlare
  • I duschrummen finns handdukstork, tvättställskommod och svängbara duschväggar i glas
  • Kaklade väggar i duschrummen
  • Golv i hall, kök och duschrum är klinker – och parkett i övriga rum
  • Golvvärme i hela lägenheten

Uteplats

På Tallyckan får du egen uteplats med lättskött altan. Här kan du ägna dig åt odling eller avkoppling utomhus – och lagom storlek på uteplatsen gör att arbetsinsatsen blir rimlig. Utöver uteplatsen på baksidan finns en liten yta på framsidan. Detta ger goda möjligheter till en fika i solen.

Rökfritt område

All Skövdebostäders nyproduktion är rökfri – så även Tallyckan. Mer information om vad ett rökfritt hus innebär. 

Bilder från en lägenhet på 73 kvadratmeter

Visningslägenheten är möblerad av Hjortmar Design. 

Om området

Tallyckan ligger på Tallstigen, centralt i Stöpen bredvid Stöpenskolan och bakom ICA Nära blomman. Husen är belägna alldeles intill ett skogsområde, där du kan höra tallarnas sus och följa årstidernas skiftningar.

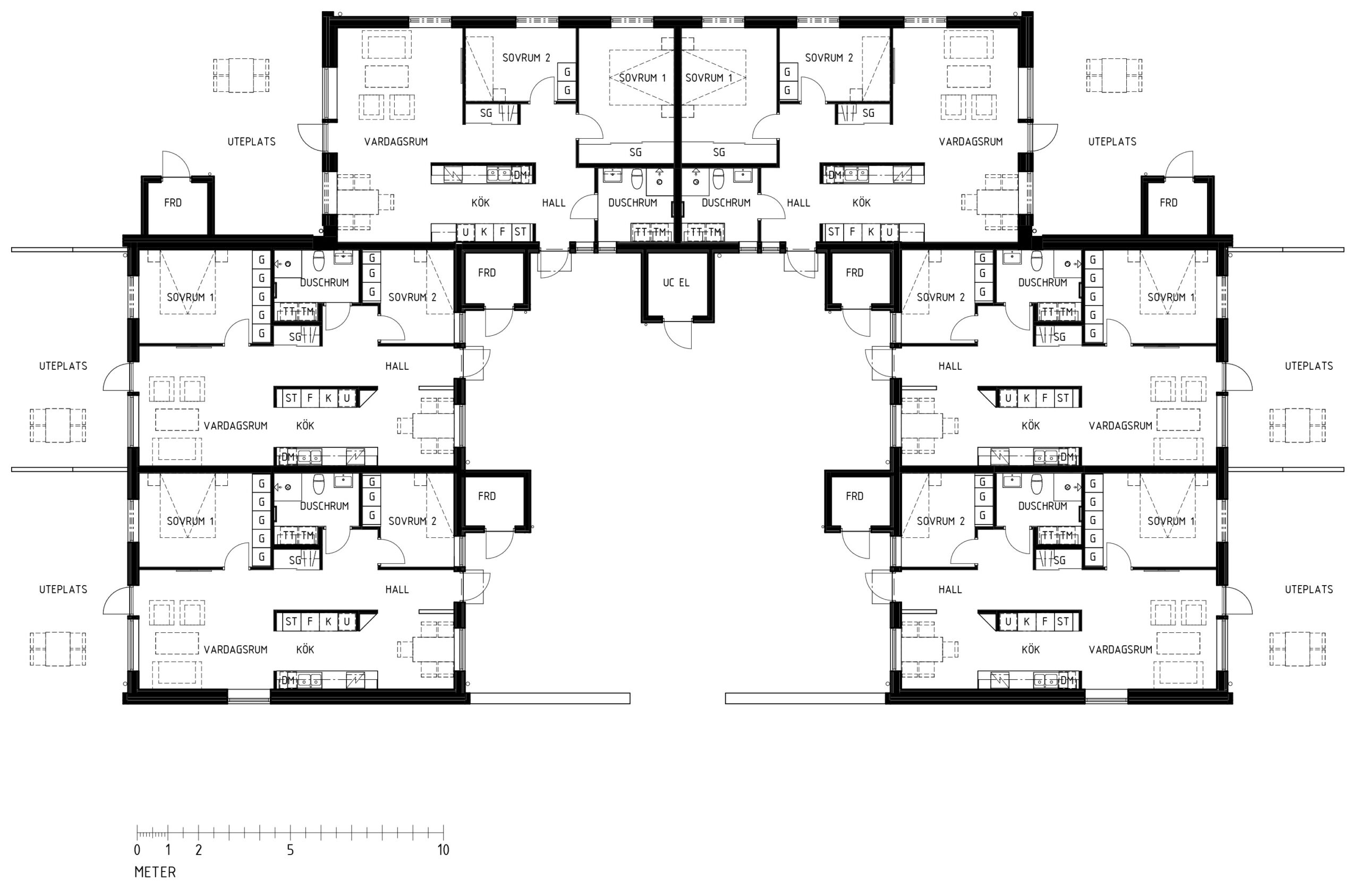
På Tallyckan ligger radhusen i hästskoformationer. Detta skapar inbjudande innergårdar för dig och dina grannar. Utformningen möjliggör trygghet och socialt umgänge – men på dina villkor.

Parkering och carport

På Tallyckan kan du hyra parkeringsplats utomhus eller i carport. Några parkeringsplatser har också laddplats. Platserna hyrs ut separat via vår parkeringskö. Mer information om att hyra parkering på Skövdebostäder.

Områdekarta

Vår områdeskarta visar hur området Tallyckan ser ut. Här ser du också hur lägenheterna ligger i förhållande till varandra. 

Visualisering av radhus på Tallyckan, mellan husen

Hållbarhet

För oss på Skövdebostäder är det viktigt att bygga långsiktigt hållbara hem. På Tallyckan finns bland annat:

  • Solceller
  • Energisnålt byggda hus
  • Fjärrvärme
  • Ett antal laddplatser för elbil
  • Miljörum med källsortering.
  • Vi bygger i hållbara material som kräver lite underhåll – som tegel och plåt.

Välkommen till Stöpen!

Stöpen är en trivsam tätort en dryg mil norr om Skövde. Här har man alltid nära till naturen och det finns goda kommunikationer med kollektivtrafik. För den aktive lockar både cykelbanor och motionsspår. På orten finns också skola, förskola, livsmedelsbutik, folktandvård, bibliotek, pizzeria, idrottshall och ett starkt föreningsliv.

Hyrs ut via bostadskön

Vi släppte lägenheterna för första gången 4 november. Lediga lägenheter hyrs ut via bostadskön och publiceras på vår webbplats. 

Antal våningar:
1
Antal lägenheter:
18
Antal treor:
18

Lediga objekt i området

Antal rum
Antal rum
parkeringsplats-laddbox
Tallstigen 20
190 kr/mån
Tillgänglig från:
2026-05-12
Anmäl intresse senast:
2026-05-04
ObjektsID:
42-5-00009
Avgiften för parkeringar kan komma att beläggas med 25 procent moms, i enlighet med gällande lagstiftning och Skatteverkets tolkning av momsreglerna. Det innebär att den angivna avgiften kan komma att justeras och inkludera moms. Avgiften inklusive moms blir då 237,50 kronor.
190 kr/mån
parkeringsplats-laddbox
Tallstigen 20
190 kr/mån
Tillgänglig från:
2026-07-01
Anmäl intresse senast:
2026-05-04
ObjektsID:
42-5-00006
Avgiften för parkeringar kan komma att beläggas med 25 procent moms, i enlighet med gällande lagstiftning och Skatteverkets tolkning av momsreglerna. Det innebär att den angivna avgiften kan komma att justeras och inkludera moms. Avgiften inklusive moms blir då 237,50 kronor.
190 kr/mån
parkeringsplats
Tallstigen 20
190 kr/mån
Tillgänglig från:
2026-06-01
Anmäl intresse senast:
2026-05-04
ObjektsID:
42-5-00014
Avgiften för parkeringar kan komma att beläggas med 25 procent moms, i enlighet med gällande lagstiftning och Skatteverkets tolkning av momsreglerna. Det innebär att den angivna avgiften kan komma att justeras och inkludera moms. Avgiften inklusive moms blir då 237,50 kronor.
190 kr/mån
parkeringsplats-laddbox
Tallstigen 20
190 kr/mån
Tillgänglig från:
2026-05-12
Anmäl intresse senast:
2026-05-04
ObjektsID:
42-5-00007
Från och med den 1 oktober 2026 kommer avgiften för alla parkeringar att beläggas med 25 procent moms, i enlighet med Skatteverkets tolkning av momsreglerna. Det innebär att alla som hyr en parkering betalar moms för platsen från och med 1 oktober.
190 kr/mån
parkeringsplats-laddbox
Tallstigen 20
190 kr/mån
Tillgänglig från:
2026-05-12
Anmäl intresse senast:
2026-05-04
ObjektsID:
42-5-00008
Från och med den 1 oktober 2026 kommer avgiften för alla parkeringar att beläggas med 25 % moms, i enlighet med Skatteverkets tolkning av momsreglerna. Det innebär att alla som hyr en parkering betalar moms för platsen från och med 1 oktober. Avgiften inklusive moms blir då 238 kronor
190 kr/mån
carport-laddbox
Tallstigen 20
600 kr/mån
Tillgänglig från:
2026-05-12
Anmäl intresse senast:
2026-05-04
ObjektsID:
42-4-00101
Från och med den 1 oktober 2026 kommer avgiften för alla parkeringar att beläggas med 25 % moms, i enlighet med Skatteverkets tolkning av momsreglerna. Det innebär att alla som hyr en parkering betalar moms för platsen från och med 1 oktober. Avgiften inklusive moms blir då 788 kronor
600 kr/mån
carport-laddbox
Tallstigen 20
600 kr/mån
Tillgänglig från:
2026-05-12
Anmäl intresse senast:
2026-05-04
ObjektsID:
42-4-00102
Från och med den 1 oktober 2026 kommer avgiften för alla parkeringar att beläggas med 25 procent moms, i enlighet med Skatteverkets tolkning av momsreglerna. Det innebär att alla som hyr en parkering betalar moms för platsen från och med 1 oktober.
600 kr/mån
Laddar
Studentläge
Skip to content